CONSTRUCTION PLANS
The Primostar Waterproofing System Construction Nodes

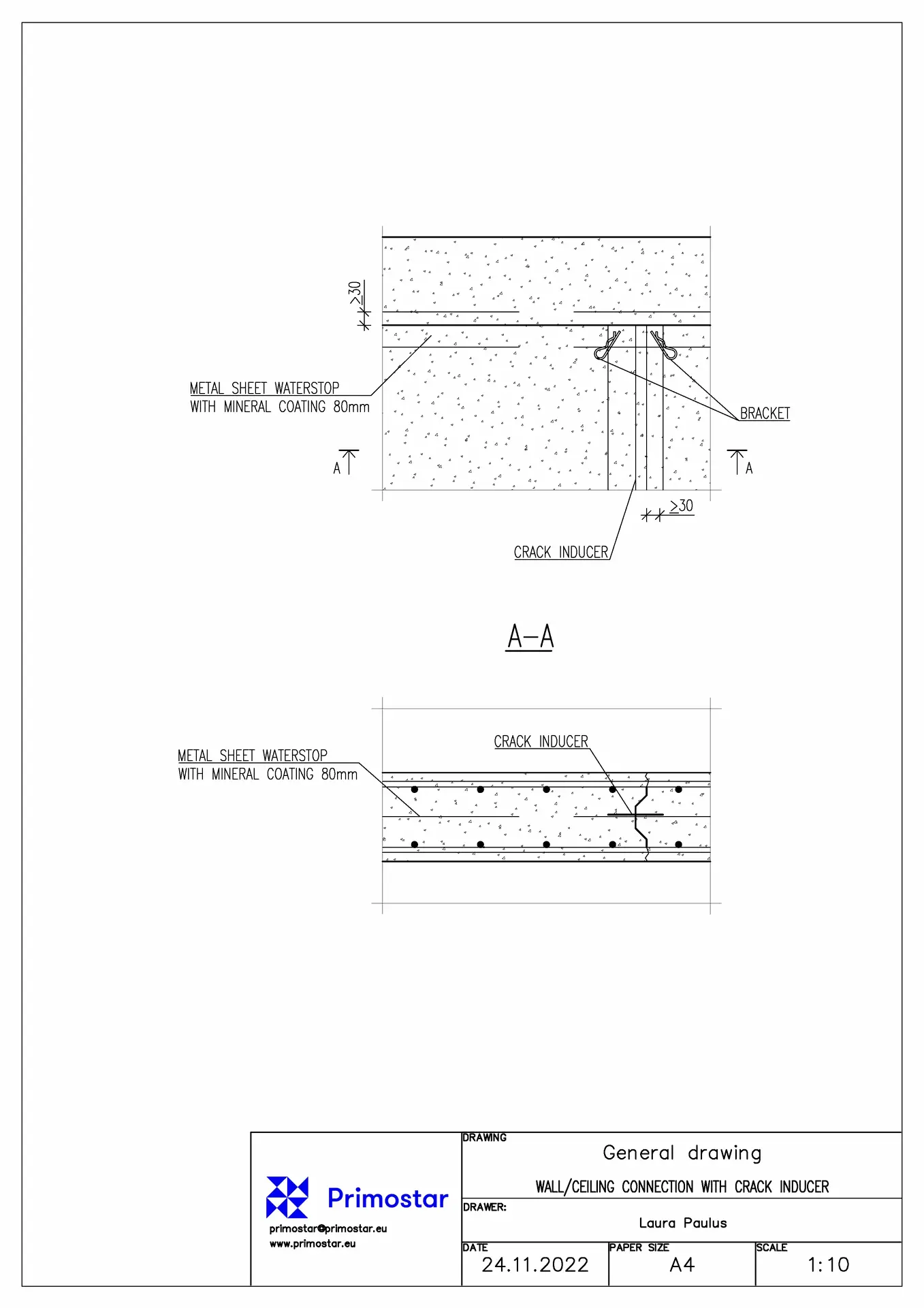
Primostar® Crack Control System
The profile is a waterproofing element for below-grade reinforced cast-in-place concrete structures that controls and waterproofs concrete shrinkage cracks while maintaining the structure's strength properties. The profile is designed to work with other WPM® construction joint waterstops and with a crystalline waterproofing admixture.
The waterproofing element is installed between the reinforcement rebars within a calculated distance from each other before the casting process. The Z-shaped steel plates connected perpendicularly to the galvanized steel sheet give the controlled shrinkage crack a binding keyway shape that maintains the structure's strength properties.

Primostar® Metal Sheet Waterstop
The profiles are metal-sheet waterstops for below-grade reinforced cast-in-place concrete structures, specifically construction joints. They are designed to work with other Primostar® waterstops and crack inducers with a crystalline waterproofing admixture in an integral, i.e., white tank waterproofing solution.
Primostar® sealing elements are used to waterproof construction joints like floor-wall, wall-wall, floor-floor, and wall-ceiling against pressurized water (2.4 bar) in various below-grade reinforced concrete structures. The most common use areas are parking houses, water tanks, etc.














